Реле твердотельные RZ3A

RZ3A

Производитель: Carlo Gavazzi

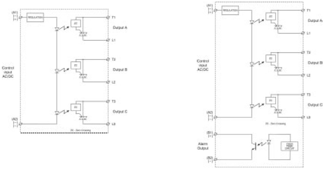
  • 3-phase Solid State Relay
  • Zero switching
  • Rated operational current: 3 x 25, 40, 55 or 75 A
  • Rated operational voltage: Up to 600 VAC
  • Control voltage 5 VDC, 4-32 VDC or 20-275 VAC/DC
  • Integral snubber networks
  • Over-temperature protection option with alarm output
  • IP 10 back-of-hand protection
  • LED indication of control input and over-temperature alarm status

Специфікації
Входная цепь
Диапазон управляющего напряжения 5 V DC
4 ... 32 V DC
24 ... 50 V DC / 24 ... 275 V AC
Напряжение отпускания 1,2 V DC
9 A
Выходная цепь
Номинальный ток нагрузки 25 A AC
40 A AC
55 A AC
75 A AC
Номинальное напряжение нагрузки 400 V AC
600 V AC
Диапазон напряжения нагрузки 24 ... 440 V AC
42 ... 660 V AC
Максимальный ток утечки < 3 mA
Минимальный ток нагрузки 150 mA

Код замовлення


Розміри й схеми

Габаритные размеры

Функциональные схемы